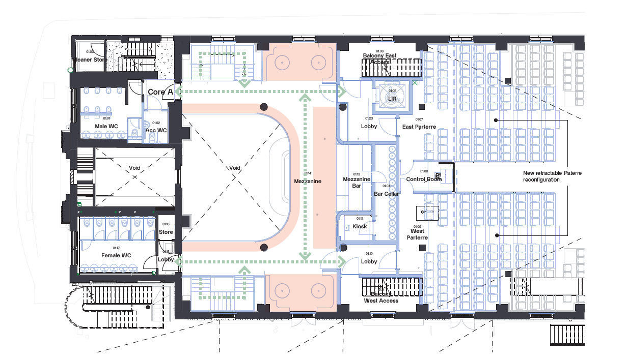
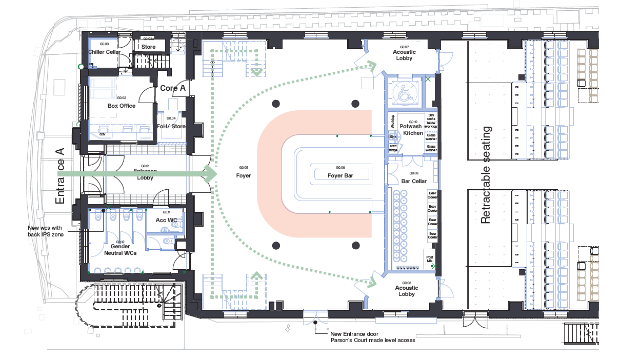
The proposals are to increase audience capacity at the Corn Exchange, with enhanced seating arrangements and facilities – including more toilets – to ensure everyone can enjoy the venue.
The Parson’s Court passageway next to the Corn Exchange will be transformed into a social space for people buying refreshments, with new concessions and bar areas being introduced inside the Corn Exchange to provide a wider variety of options and enhancing the overall visitor experience.
Lifts will be added to ensure full accessibility, while also making all areas, including the small bar, more welcoming.

Concerns about the acoustics of the hall were widely shared and have been reflected to us by several groups; we will be working to improve sound quality and upgrading the stage rig and other audio-visual equipment to ensure performances and events meet the highest standards for audiences and performers, to ensure the Corn Exchange is a sought-after performance venue.
Additional improvements will also be made, including improving back of house and temperature control systems, and getting as close to net zero as possible within the building’s heritage constraints, including introducing air source heat pumps and solar panels.
Expanding the uses and appeal of the Corn Exchange

By involving local people in the design strategy, we hope to increase daytime use for cultural events or conferences to generate additional income and attract a wider, more diverse audience to the Corn Exchange.
Cambridge Corn Exchange is the largest performance venue in the East of England, vital to Cambridge’s cultural life. The proposed enhancements will ensure it continues to thrive.
A wider range of daytime activities will be enabled, including educational programmes for schools and community events, making the venue a dynamic hub for more groups.